Xuất xứ: Chính hãng
KÉT NƯỚC BỒN CẦU TREO TƯỜNG GROHE 38528001
-23%
5Đã bán: 56
-25%
5Đã bán: 53
-25%
5Đã bán: 78
-18%
5Đã bán: 16
-20%
5Đã bán: 17
-37%
5Đã bán: 28
-23%
5Đã bán: 24
-23%
5Đã bán: 100
11.000.000 ₫ Giá gốc là: 11.000.000 ₫.8.240.000 ₫Giá hiện tại là: 8.240.000 ₫.-25%
Còn hàng
Chính sách sản phẩm

Hàng chính hãng, bảo hành 12 tháng

Miễn phí giao hàng trong ngày
Hoặc gọi: 0919.31.8587 - 0937.678.139
Chi Tiết Sản Phẩm
1.Tính Năng Két Nước Bồn Cầu Treo Tường Grohe 38528001
- Lượng nước xả: 6/3L
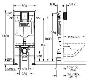
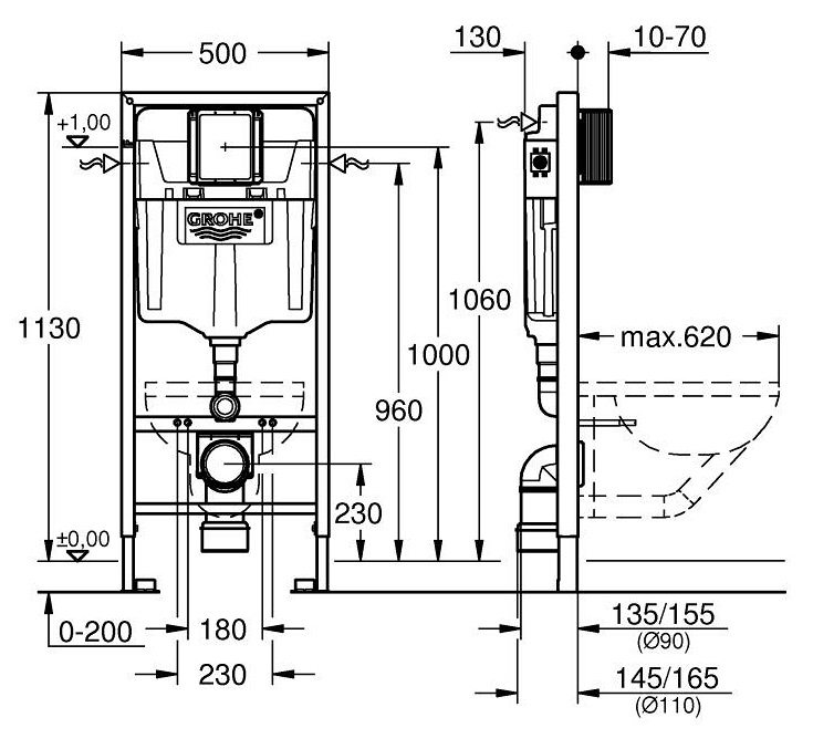
- Kích thước: 1130 x 500 x 130 mm
- Áp suất nước: 0.05 Mpa – 0.75 Mpa
- Van xả khí nén cung cấp 3 chế độ hoạt động: xả kép hoặc khởi động/dừng hoặc xả đơn
- Cấp nước từ trái/phải hoặc ngược lại
- Cách nhiệt chống ngưng tụ
- Tiếng ồn thấp
- Van xả khí nén với 2 chức năng: xả kép hoặc xả bắt đầu & dừng.
- Cấp nước từ trái / phải hoặc ngược lại.
- Ống nối cấp nước 1/2 với van góc tích hợp.
- GROHE Whisper: Giảm tiếng ồn khi sử dụng.
- GROHE QuickFix Plus: Cài đặt nhanh chóng, dễ dàng và không phức tạp.
- GROHE EcoJoy: Tiết kiệm nước tối ưu.
- QuickFix với tính năng ToolFree, giúp không cần dụng cụ để nối ống, trục kiểm tra và cấp nước.
- Chịu được tải trọng trên 400 kg cho độ ổn định cao nhất.
2. Bản Vẽ Két Nước Bồn Cầu Treo Tường Grohe 38528001

Sản phẩm liên quan
-31%
5Đã bán: 90
-23%
Bồn Cầu GROHE
5Đã bán: 14


















